XQ
Super School Bus
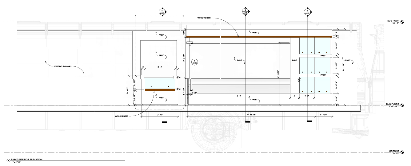
Set Designer. Designed and produced construction drawings for
display furniture and interior bus renovations for a traveling exhibit.
Production Designer: James Chinlund
Art Director: Arielle Ness-Cohen
Set Designer: Scott Baker

Display Furniture Render

Bus Interior Render


2D Drawings for Fabrication



Construction Photos